Metamorfoz
Bağlamsızlık
Proje Konumu
İstanbul Türkiye.
Proje Yılı
2023
İnşaat Yılı
45.190 m²
Proje Türü
Konsept – Avan Proje
İşveren
İstanbul B.B.
Kentsel Meydanlar
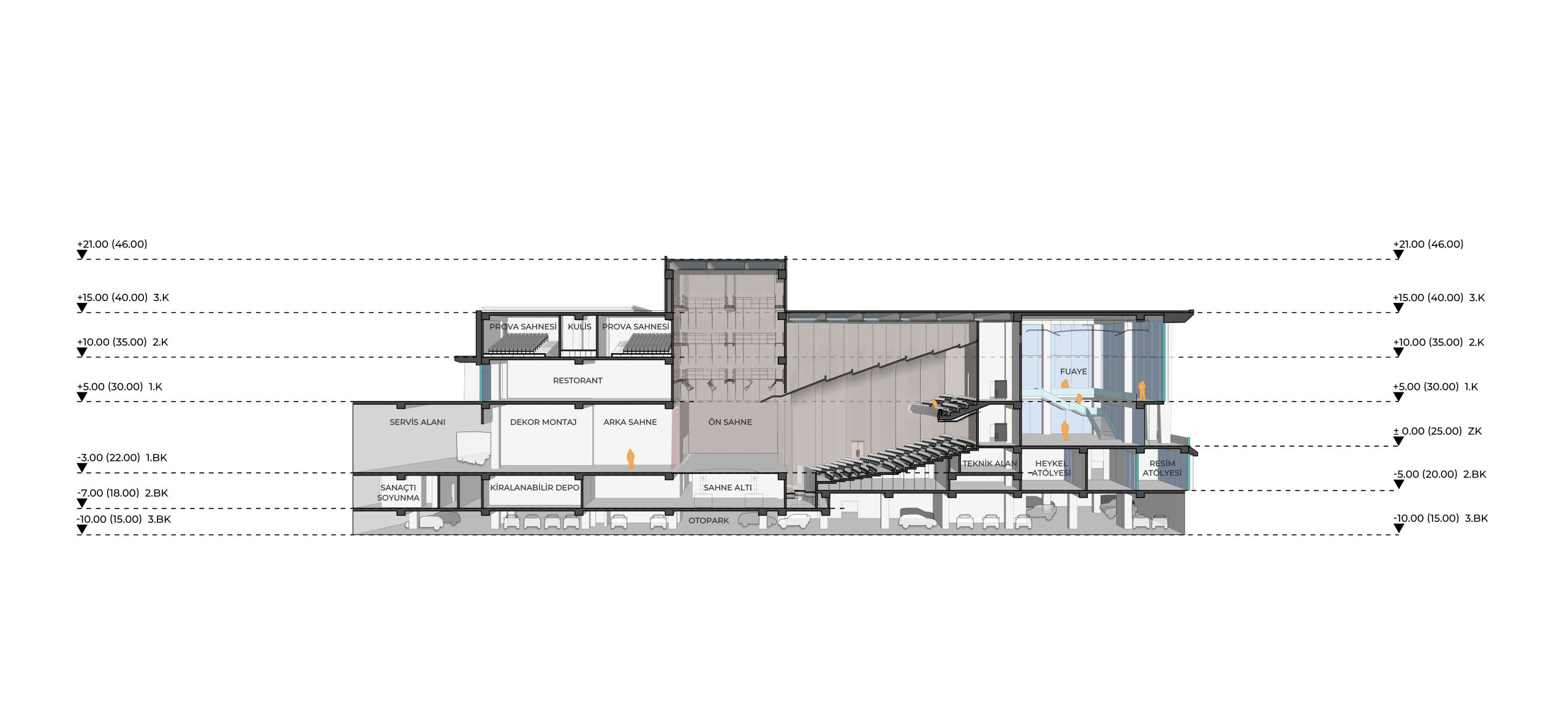
Projede yer alan iki ana kütle bulunur. Bu kütleler ihtiyaç programında yer alan salonlar çerçevesinde şekillenmiştir. 2057 kişi kapasiteli büyük salon uluslarası etkinliklere ev sahipliği yapabilecek düzende olup; konser, müzikal, panel gibi çeşitli organizasyonlar için tasarlanmıştır. Diğer ana kütlede yer alan 657 kişi kapasiteli küçük salon ise opera ve tiyatrolara ev sahipliği yapabilecek şekilde kurgulanmıştır.
Buluşma Meydanı
Projenin tasarım aşamasında programın temel unsurlarından biri olarak kurgulanan atölye alanları kullanıcı erişimini kolaylaştırmak ve kullanım alışkanlıkları oluşturmak amacıyla mahalle kotunda tasarlanmıştır. Yapıyla ilk temasa geçilen noktada bulunan atölyelerin günlük hayatta sürekli kullanılan bir alan olması hedeflenmiştir. Çevresinde bulunan okullardan ve mahalle sakinlerinden oluşacak kullanıcısı bu atölyeler sayesinde yapıyla sürekli bir ilişki halinde olacaktır. Bu kullanım alışkanlığının yapının bölgeye aidiyetini artıracağı öngörülmüştür. Ayrıca atölyeler önünde bulunan peyzaj alanının, burada yer alan betula utilis ile birlikte kentli için bir buluşma noktası haline gelmesi hedeflenmiştir.
Kütlenin mahalle ölçeğinde yol cephesini tutması ve mahalle kotunda insan ölçeğini yakalaması hedeflenmiştir. Yapı, üst kota çıkıldığında geri çekilerek kent fuayeleri oluşturmayı amaçlamaktadır. İhtiyaç programının temel unsurları olan salonların yer aldığı kütlelerin şeffaf bir şekilde oluşturulmasıyla başlayan tasarım sürecinde, yapının kültüre eklemlenmesi ve adeta bu zemine kök salması ve kentin sembollerinden biri haline gelmesi fikri tasarıma yön vermiştir.



